&ev=PageView&noscript=1 />
0173 779327
Piazza G. Perotti, 41, 12061 Carrù - Italia
info@lacasa.immo

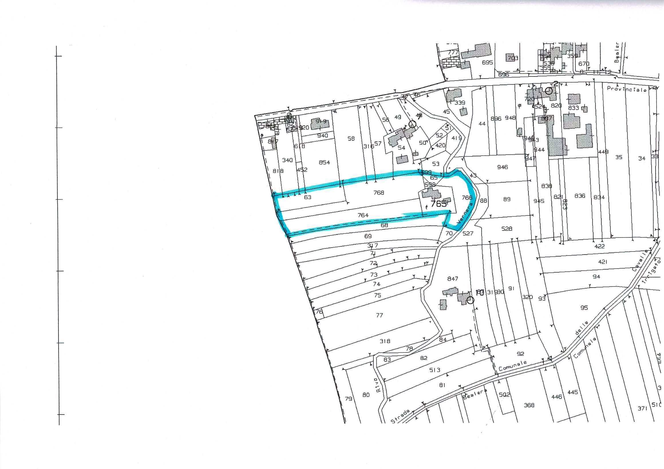
Piozzo – Cascinale con noccioleto

88.000€

Servizi

  • Bagno
  • Balcone
  • Cucina Abitabile
  • Giardino
  • Riscaldamento Autonomo
  • Soggiorno

Dettagli

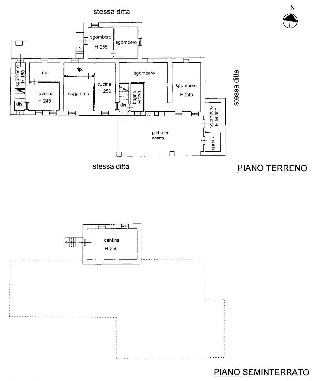
In borgata ampio cascinale composto da due unità abitative con stalla fienile fabbricato indipendente uso pollaio di 100 mq. La proprietà è all’interno di un lotto di terreno di 12000 mq circa, di cui 10000 circa coltivati a nocciole piantate 8 anni fa, quindi in piena produzione. I due appartamenti hanno ingressi indipendenti e sono disposti su due livelli. Fabbricato da ristrutturare. Pozzo.

Planimetrie

Piozzo 155000.jpg

PLN_180512592_1_page-0001.jpg

PLN_180512592_1_page-0002.jpg

PLN_180512592_2_page-0001.jpg